Steinkirchen - einziehen und wohlfühlen! Erstbezug: 3-Zi.-Wohnung mit Loggia

Lage: 21720 Grünendeich | Niedersachsen
Visualisierung - Hauseingänge
Visualisierung - Außenansicht Nord-Ost-Seite
Visualisierung - Außenansicht Süd-West-Seite
Lageplan
Visualisierung - Küche
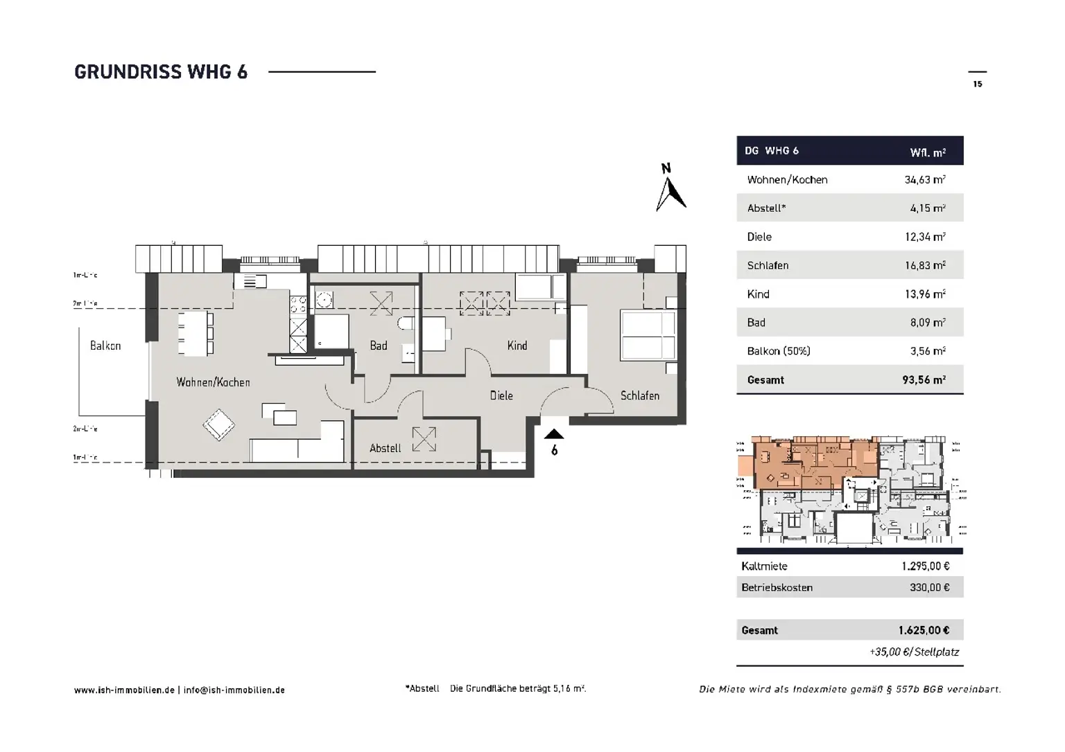
Wohnungsdaten

Beschreibung

Hier entsteht in zentraler Lage von Steinkirchen ein Mehrfamilienhaus mit 7 Wohnungen. Die Wohnungen verfügen über 2 bis 4 Zimmer und haben eine Größe von 61 m² bis 114 m². Das Haus ist mit einem Aufzug ausgestattet. Es wurden ausreichend Außenstellplätzen geschaffen, somit kann jeder Bewohner sein Fahrzeug am Haus abstellen. Im Außenbereich wird ein abschließbarer Fahrradraum erstellt.



Die Ausstattung ist durchdacht und von hoher Qualität. Die Wohnungen werden mit geschmackvollen, modernen Einbauküchen, mit Marken-Sanitärobjekten, Glasduschtür, modernen Fliesen im Bad und Treppenhaus sowie Designbodenlag in Wohn- und Schlafräumen ausgestattet. In den Wohn- und Schlafräumen erhalten die Fenster elektrische Rollläden. Auf den Balkonen und der Dachterasse wird ein WPC-Bodenbelag verlegt. Die Terrassen der Erdgeschosswohnungen erhalten moderne großformatige Terrassenplatten.



Ist das Ihr neues Zuhause? Wir freuen uns auf Ihre Nachricht, schreiben Sie uns direkt über dieses Portal an.

Lage und Verkehrsanbindung

Steinkirchen gehört zur Samtgemeinde Lühe und liegt zwischen Stade und Buxtehude mitten im Alten Land. Der Fähranleger Lühe ist nur 3 km entfernt. In Buxtehude sind Sie in 20 Minuten, nach Finkenwerder benötigen Sie knapp 30 Minuten und die Hansestadt Stade ist ca. 17 Minuten mit dem Auto entfernt. Den Feierabend können Sie bei einem schönen Spaziergang am Deich ausklingen lassen. In Steinkirchen finden Sie neben mehreren Obsthöfen mit regionalem Obst und Gemüse auch einen großen Supermarkt, ein Fitness-Studio und ein Restaurant. Der Bäcker vor Ort ermöglicht ein kleines Frühstück und kleine Cafés laden zum Rasten ein.

Ausstattungsbeschreibung

- Einbauküche
- Duschbad
- Designbelag in den Wohnräumen
- 2 Abstellräume
- Balkon
- barrierefrei
- elektrische Rollläden
- Video-Freisprechanlage
- Aufzug
- Gebäude für Fahrräder
- Kfz-Stellplatz (je zzgl. EUR 35,00)
- Indexmietvertrag

Weitere Informationen

Hinweis: Wir weisen höflich darauf hin, dass die hier gemachten Angaben ausschließlich auf den uns vom Eigentümer übermittelten Unterlagen und Daten basieren. Für die Richtigkeit und Vollständigkeit können wir keine Haftung übernehmen. Das Angebot ist freibleibend. Forderungen und Irrtümer vorbehalten.

Wenn Sie zu diesem Angebot Kontakt zu uns aufnehmen, werden Ihre personenbezogenen Daten von uns gespeichert. Weitere Informationen zum Datenschutz finden Sie auch auf unserer Homepage unter https://ish-immobilien.de/de/datenschutzerklaerung

Hinweise Geldwäschegesetz - GwG:

Als Immobilienmakler sind wir nach § 2 Abs. 1 Nr. 14 und § 10 Abs. 3 Geldwäschegesetz (GwG) dazu verpflichtet, bei der Begründung einer Geschäftsbeziehung die Identität des Vertragspartners festzustellen und zu überprüfen. Hierzu ist es erforderlich, dass wir nach § 11 GwG die relevanten Daten Ihres Personalausweises festhalten (wenn Sie als natürliche Person handeln) - beispielsweise mittels einer Kopie. Bei einer juristischen Person benötigen wir eine Kopie des Handelsregisterauszugs, aus welchem der wirtschaftlich Berechtigte hervorgeht. Das Geldwäschegesetz schreibt uns zwingend vor, dass wir die Kopien bzw. Unterlagen fünf Jahre aufbewahren.


vorläufiger Energieausweis: Bedarfsausweis gültig von: 02.12.2024
Endenergiebedarf Wärme: 15.9 kWh/(m²a)
Wesentliche Energieträger Heizung: Befeuerung Luftwärme
Energieeffizienzklasse: A+
Baujahr: 2025

Fakten

Objektnummer:
4964e
Objekttyp:
Wohnung
Wohnfläche:
93,56 m²
Zimmer:
3
Baujahr:
2025
Neubau:
Ja
Zustand:
Erstbezug
Verfügbarkeit:
01.02.2026

Preisdetails

Nettokaltmiete:
1.295,00 €
Betriebskosten:
330,00 €
Kaution:
2.590,00 €
Parkplatz Kosten Brutto:
35,00 €

Energieeffizienz

Endenergiebedarf:
15.90 kWh/(m²*a)
Energieeffizienzklasse:
A+
Wesentliche Energieträger:
Luftwärmepumpe
Baujahr laut Energieausweis:
2025
Ausstellung:
ab dem 1.5.2014
Energieausweisart:
Energiebedarfsausweis
Energieausweis Ausstellungsdatum:
02.12.2024
Gültig bis:
01.12.2034

Ansprechpartner

Mareike  Martienß
Anfrage
Max. 500 Zeichen
Ich habe die Datenschutzvereinbarung gelesen und verstanden, und ich stimme der Verarbeitung meiner persönlichen Daten wie darin beschrieben zu. *